
Toà nhà VINAHUD
Toà nhà VINAHUD nằm trong khu đô thị mới Nam Trung Yên – một trong những khu đô thị phát triển năng động, bền vững thuộc quận Cầu Giấy, tòa nhà hấp dẫn khách thuê bởi những ưu điểm về vị trí đẹp, giao thông thuận tiện cùng với kiến trúc thiết kế hiện đại và giá thuê rất hợp lý.
Thông tin tòa nhà
Vị trí toà nhà VINAHUD
Toà nhà VINAHUD nằm trong khu đô thị mới Nam Trung Yên – một trong những khu đô thị phát triển năng động, bền vững thuộc quận Cầu Giấy, tòa nhà hấp dẫn khách thuê bởi những ưu điểm về vị trí đẹp, giao thông thuận tiện cùng với kiến trúc thiết kế hiện đại và giá thuê rất hợp lý.
Thông tin tòa nhà
| Vị Trí | Nam Trung Yên, Cầu Giấy |
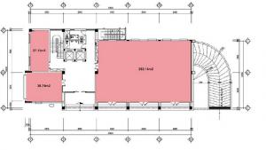
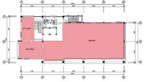
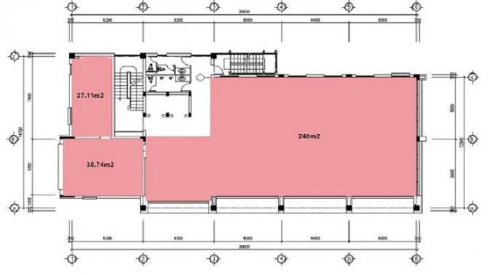
| Số tầng | Gồm khối 9 tầng, khối 5 tầng và 1 tầng hầm |
| Diện tích sàn | Khối 9 tầng: 435m2, khối 5 tầng: 414m2 |
| Chiều cao trần | 2,7m |
| Đỗ xe | Toàn bộ diện tích tầng hầm được sử dụng làm bãi đỗ xe |
| Thang máy | Hệ thống thang máy tốc độ cao và 2 thang bộ |
| Điều hòa | Hệ thống điều hòa trung tâm |
| Điện dự phòng | Hệ thống điện dự phòng đáp ứng 100% nhu cầu sử dụng tại toà nhà |
| Giờ hoạt động |
Từ thứ 2 – thứ 6: 8h -18h Thứ 7: 8h - 12h30. |
| Giá thuê | X USD |
Vị trí toà nhà VINAHUD
Tòa nhà VINAHUD nằm ngay ngã tư giữa đường Trung Yên 3 và Trung Yên 9 nên có không gian thông thoáng, mặt tiền rộng, giao thông thuận lợi.
Từ vị trí này rất thuận tiện di chuyển ra các trục đường lớn như khu Trung Hòa, đường Trần Duy Hưng, Phạm Hùng, đường vành đai 3 hay Đại lộ Thăng Long
Tòa nhà nằm trong khu đô thị Nam Trung Yên – đây là một khu độ thị có tốc độ tăng trưởng và phát triển mạnh mẽ so với nhiều năm trước đây, tập trung nhiều khu dân cư cùng các tòa nhà văn phòng nên thuận lợi cho các doanh nghiệp tiếp cận nhiều đối tượng khách hàng khác nhau, có cơ hội hợp tác, mở rộng hoạt động kinh doanh.
Vị trí
Tiện ích
Tiện ích, dịch vụ tại tòa nhàTòa nhà có vị trí địa lý thuận lợi kéo theo đó là những tiện ích về giao thông. Yếu tố này chính là điểm thu hút lớn nhất của tòa nhà đối với khách thuê.
– Xung quanh tòa nhà là nhiều khu chung cư, các tòa nhà văn phòng cho thuê, các mặt bằng kinh doanh, các trung tâm thương mại… giúp tạo thuận lợi nhu cầu làm việc, mua sắm, giải trí của cán bộ nhân viên.
– Phía Nam tòa nhà được bố trí khu đất trông nhiều cây xanh tạo môi trường làm việc trong lành, cảnh quan thẩm mỹ.
Tòa nhà Vinahud có những tiện ích & dịch vụ nổi bật khác như:
+ Hệ thống trang thiết hoàn thiện, đạt chuẩn của một tòa nhà văn phòng hiện đại, đáp ứng tối đa nhu cầu sử dụng của khách hàng.
+ Bộ phận quản lý tòa nhà chuyên nghiệp giúp hướng dẫn, hỗ trợ tối đa cho khách hàng.
+ Bộ phận ninh đảm bảo 24/24, có lắp camera quan sát tại các khu vực công cộng.
+ Hệ thống điện nước, internet, cáp quang được lắp đặt đầy đủ tận từng văn phòng.
Video
Chính sách bán hàng
Tin tức
Đại diện bán hàng
Đăng ký mua, thuê - nhận tài liệu





