Ngày đăng: 14/01/2026 - Ngày hết hạn: 30/06/2026
Diện tích: Giá: Thỏa thuận Quận/Huyện: Huyện Gò Dầu Tỉnh/Thành phố: Tây Ninh
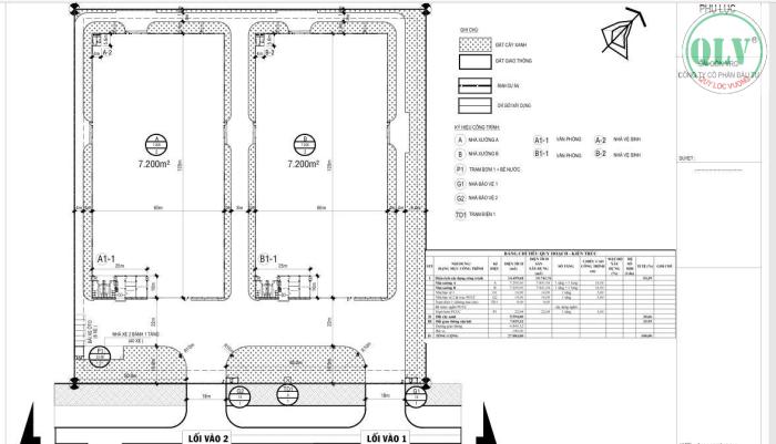
Thông tin chi tiết
Vị trí: Khu công nghiệp Phước Đông, Gò Dầu, Tây Ninh
Tổng diện tích khuôn viên: 27.083m²
Diện tích xây dựng: 14.459m², bao gồm:
Nhà xưởng A: 7.200m²
Nhà xưởng B: 7.200m²
Cùng các công trình phụ trợ khác
Tiện ích & hạ tầng:
Xưởng mới xây, thiết kế hiện đại, cao thoáng, nền chịu lực tốt
Hệ thống điện, nước, PCCC đạt tiêu chuẩn
Đường nội bộ rộng, container ra vào thuận tiện
Nằm trong KCN lớn, hạ tầng đồng bộ, an ninh đảm bảo
Phù hợp nhiều ngành nghề sản xuất hoặc kho bãi
Để biết thêm thông tin chi tiết vui lòng liên hệ:
CTY TNHH MTV QUÝ LỘC VƯỢNG
Hotline: 0931 769 444
Website: https://nhaxuongchinhchu.vn
Hình ảnh




Video
Bản đồ

CHO THUÊ KHO BÃI LOGISTICS GÒ DẦU 1.600m² - 6.000m²
CHO THUÊ BÃI LOGISTICS – GÒ DẦU, TÂY NINH – KHO 1.600m² & 6.000m² Thông tin chi tiết Vị trí: Huyện Gò Dầu, Tỉnh Tây Ninh Tổng diện tích sân bãi: Rộng rãi, phù...
Diện tích: Không xác định
Khu vực: Huyện Gò Dầu, Tây Ninh Ngày: 19:13 | 11/02/2026 Giá: Thỏa thuận

CHO THUÊ NHÀ XƯỞNG – KCN PHƯỚC ĐÔNG, TN – 25.200m²
CHO THUÊ NHÀ XƯỞNG – KCN PHƯỚC ĐÔNG, TN – 25.200m² Thông tin chi tiết Vị trí: Khu Công Nghiệp Phước Đông, Gò Dầu, Tây Ninh Tổng diện tích xưởng trống: 25.200m² Quy...
Diện tích: Không xác định
Khu vực: Huyện Gò Dầu, Tây Ninh Ngày: 14:04 | 17/01/2026 Giá: Thỏa thuận

Cho thuê kho bãi logistic diện tích 1.600m2 và 6.000 m2 Gò Dầu, Tây Ninh
Cho thuê kho bãi logistic diện tích 1.600m2 và 6.000 m2 Gò Dầu, Tây Ninh ???? Vị trí: Khu vực Gò Dầu, Tây Ninh – vị trí thuận lợi, gần Quốc lộ 22B, dễ kết nối đến...
Diện tích: Không xác định
Khu vực: Huyện Gò Dầu, Tây Ninh Ngày: 13:57 | 22/10/2025 Giá: Thỏa thuận

Cho thuê nhà xưởng diện tích 12.960 m2 tại Gò Dầu, Tây Ninh
Cho thuê nhà xưởng diện tích 12.960 m2 tại Gò Dầu, Tây Ninh ???? Quy mô tổng thể: • Tổng diện tích đất: 12.410 m² • Diện tích nhà xưởng: 12.960 m² (2 tầng,...
Diện tích: Không xác định
Khu vực: Huyện Gò Dầu, Tây Ninh Ngày: 14:12 | 08/10/2025 Giá: Thỏa thuận

CHO THUÊ NHÀ XƯỞNG – KCN PHƯỚC ĐÔNG, GÒ DẦU, TÂY NINH – 25.200m²
CHO THUÊ NHÀ XƯỞNG – KCN PHƯỚC ĐÔNG, GÒ DẦU, TÂY NINH – 25.200m² Thông tin chi tiết Vị trí: Khu Công Nghiệp Phước Đông, Gò Dầu, Tây Ninh Tổng diện tích xưởng...
Diện tích: Không xác định
Khu vực: Huyện Gò Dầu, Tây Ninh Ngày: 09:19 | 08/10/2025 Giá: Thỏa thuận

CHO THUÊ NHÀ XƯỞNG MỚI XÂY – KCN PHƯỚC ĐÔNG, GÒ DẦU, TÂY NINH – 14.459m²
CHO THUÊ NHÀ XƯỞNG MỚI XÂY – KCN PHƯỚC ĐÔNG, GÒ DẦU, TÂY NINH – 14.459m² Thông tin chi tiết Vị trí: Khu công nghiệp Phước Đông, Gò Dầu, Tây Ninh Tổng...
Diện tích: 14459 m2
Khu vực: Huyện Gò Dầu, Tây Ninh Ngày: 10:44 | 04/10/2025 Giá: 104,000 Vnđ

BÁN/ CHO THUÊ kho, nhà xưởng 1300 M2 tại Gò Dầu, Tây Ninh
BÁN/ CHO THUÊ kho, nhà xưởng 1300 M2192 QL 22, Xã Thanh Phước, Gò Dầu, Tây Ninh Nằm tại vị trí chiến lược, có diện tích rộng 1300m², phù hợp cho nhiều loại hình...
Diện tích: 1300 m2
Khu vực: Huyện Gò Dầu, Tây Ninh Ngày: 14:40 | 08/04/2025 Giá: 0 Vnđ

Cho thuê nhà xưởng 20.000 m2 tại Gò Dầu, Tây Ninh giá rẻ
Cho thuê nhà xưởng 20.000 m2 tại Gò Dầu, Tây Ninh giá rẻ ???? Vị trí: Gò Dầu, Tây Ninh (Gần KCN Phước Đông) ✅ Khu vực công nghiệp phát triển, thuận lợi sản...
Diện tích: Không xác định
Khu vực: Huyện Gò Dầu, Tây Ninh Ngày: 11:11 | 26/03/2025 Giá: Thỏa thuận


