Ngày đăng: 03/03/2026 - Ngày hết hạn: 31/05/2027
Diện tích: Giá: Thỏa thuận Quận/Huyện: Thị xã Bến Cát Tỉnh/Thành phố: Bình Dương
Thông tin chi tiết
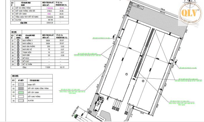
Vị trí: Khu Công Nghiệp Mỹ Phước, Thị xã Bến Cát, Tỉnh Bình Dương
Tổng diện tích khuôn viên: 22.554m²
Tổng diện tích xây dựng: 11.928m², bao gồm:
Xưởng 1: 5.838m²
Xưởng 2: 5.838m²
Văn phòng (1 trệt, 1 lầu): 200m² x 2 = 400m²
Cùng các công trình phụ trợ khác
Tiện ích & hạ tầng
Nhà xưởng đang trong giai đoạn xây dựng, thiết kế hiện đại, kết cấu khung thép tiền chế, nền bê tông chịu tải tốt
Trang bị hệ thống PCCC tự động, điện – nước – thoát nước đạt tiêu chuẩn khu công nghiệp
Đường nội bộ rộng rãi, xe container ra vào thuận tiện
Vị trí trung tâm KCN Mỹ Phước – thuận lợi kết nối đến TP. Thủ Dầu Một, TP. Hồ Chí Minh, Tây Ninh và các khu công nghiệp lân cận
Phù hợp cho doanh nghiệp sản xuất, kho bãi, logistics, hoặc đầu tư cho thuê lại
Liên hệ để biết thêm thông tin chi tiết:
CÔNG TY TNHH MTV QUÝ LỘC VƯỢNG
Hotline: 0931 769 444
Website: https://nhaxuongchinhchu.vn
Hình ảnh




Video
Bản đồ

Cho thuê nhà xưởng KCN Mỹ Phước, Bến Cát, Bình Dương 11.370m²
Cho thuê nhà xưởng – KCN Mỹ Phước, Bến Cát, Bình Dương – 11.370m² Thông tin chi tiết Vị trí: Khu Công Nghiệp Mỹ Phước, Bến Cát, Tỉnh Bình Dương Tổng diện...
Diện tích: Không xác định
Khu vực: Thị xã Bến Cát, Bình Dương Ngày: 16:12 | 22/04/2026 Giá: Thỏa thuận

Cho thuê nhà xưởng KCN Mỹ Phước, Bến Cát, Bình Dương 2.022m²
Cho thuê nhà xưởng – KCN Mỹ Phước, Bến Cát, Bình Dương – 2.022m² Thông tin chi tiết Vị trí: Khu Công Nghiệp Mỹ Phước, Bến Cát, Tỉnh Bình Dương Tổng diện...
Diện tích: Không xác định
Khu vực: Thị xã Bến Cát, Bình Dương Ngày: 16:12 | 22/04/2026 Giá: Thỏa thuận

CHO THUÊ NHÀ XƯỞNG – HƯNG HÒA, BẾN CÁT, BD – 29.220m²
CHO THUÊ NHÀ XƯỞNG – HƯNG HÒA, BẾN CÁT, BD – 29.220m² Thông tin chi tiết Vị trí: Xã Hưng Hòa, Thị xã Bến Cát, Tỉnh Bình Dương Tổng diện tích khuôn viên: 62.157m² Loại...
Diện tích: Không xác định
Khu vực: Thị xã Bến Cát, Bình Dương Ngày: 14:24 | 21/04/2026 Giá: Thỏa thuận

???? Cho thuê đất & nhà xưởng tổng diện tích 62.157 m² Hưng Hòa Bến Cát Bình Dương ????
???? Vị trí: Hưng Hòa, Bến Cát, Bình Dương ???? Tổng diện tích khu đất (SKC): 62.157 m² • Đất SKC: 58.267 m² (trả tiền hàng năm đến năm 2058) ????️ Diện tích...
Diện tích: 62157 m2
Khu vực: Thị xã Bến Cát, Bình Dương Ngày: 14:24 | 21/04/2026 Giá: 74,000 Vnđ

CHO THUÊ XƯỞNG 600M² – MẶT TIỀN ĐT741, HOÀ LỢI, BẾN CÁT, BÌNH DƯƠNG
CHO THUÊ XƯỞNG 600M² – MẶT TIỀN ĐT741, HOÀ LỢI, BẾN CÁT, BÌNH DƯƠNG + Vị trí đắc địa: Mặt tiền đường ĐT741, Phường Hoà Lợi,Thị Xã Bến Cát, Bình Dương –...
Diện tích: 600 m2
Khu vực: Thị xã Bến Cát, Bình Dương Ngày: 15:07 | 07/04/2026 Giá: 28,000,000 Vnđ

CHO THUÊ NHÀ XƯỞNG – KCN ĐỒNG AN 1, BD – 6.480m²
CHO THUÊ NHÀ XƯỞNG – KCN ĐỒNG AN 1, BD – 6.480m² Thông tin chi tiết Vị trí: Khu Công Nghiệp Đồng An 1, Tỉnh Bình Dương Tổng diện tích khuôn viên: 13.600m² Diện...
Diện tích: 6480 m2
Khu vực: Thị xã Bến Cát, Bình Dương Ngày: 14:12 | 07/04/2026 Giá: 99,000 Vnđ

NHÀ XƯỞNG 6.000M² – KCN PROTRADE, BÌNH DƯƠNG ĐIỆN 1200KVA – PCCC TỰ ĐỘNG
NHÀ XƯỞNG 6.000M² – KCN PROTRADE, BÌNH DƯƠNG ĐIỆN 1200KVA – PCCC TỰ ĐỘNG Vị trí: KCN Protrade, An Tây, Bến Cát, Bình Dương (giáp TP.HCM – kết nối nhanh) ━━━━━━━━━━━━━━━━━━ Thông...
Diện tích: 6000 m2
Khu vực: Thị xã Bến Cát, Bình Dương Ngày: 16:06 | 06/04/2026 Giá: 700,000,000 Vnđ

Cho thuê nhà xưởng KCN Mỹ Phước, Bến Cát, Bình Dương 20.019m²
Cho thuê nhà xưởng – KCN Mỹ Phước, Bến Cát, Bình Dương – 20.019m² Thông tin chi tiết Vị trí: Khu Công Nghiệp Mỹ Phước, Thị xã Bến Cát, Tỉnh Bình Dương Tổng...
Diện tích: Không xác định
Khu vực: Thị xã Bến Cát, Bình Dương Ngày: 13:17 | 11/03/2026 Giá: Thỏa thuận


