Ngày đăng: 22/12/2025 - Ngày hết hạn: 25/05/2026
Diện tích: Giá: Thỏa thuận Quận/Huyện: Thị xã Bến Cát Tỉnh/Thành phố: Bình Dương
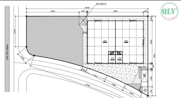
Thông tin chi tiết
Vị trí: Khu Công Nghiệp Mỹ Phước, Bến Cát, Tỉnh Bình Dương
Tổng diện tích khuôn viên: 5.228m²
Diện tích xây dựng: 2.022m²
Trong đó
Nhà xưởng: 1.900m² (38m x 50m)
Văn phòng: 50m²
Công trình phụ trợ đầy đủ
Hạ tầng điện nước hoàn chỉnh
Nằm trong KCN, xe container ra vào thuận tiện
Đường nội khu rộng, phù hợp sản xuất – kho bãi
Tiện ích & đặc điểm
Xưởng phù hợp làm kho hoặc nhiều ngành nghề sản xuất
Kết cấu xưởng kiên cố, thông thoáng
Hệ thống PCCC theo tiêu chuẩn
Vị trí đẹp trong KCN, kết nối giao thông thuận lợi
Liên hệ
CÔNG TY TNHH MTV QUÝ LỘC VƯỢNG
Hotline: 0931 769 444
Website: https://nhaxuongchinhchu.vn
Hình ảnh



Video
Bản đồ

Cho thuê nhà xưởng KCN Mỹ Phước, Bến Cát, Bình Dương 2.022m²
Cho thuê nhà xưởng – KCN Mỹ Phước, Bến Cát, Bình Dương – 2.022m² Thông tin chi tiết Vị trí: Khu Công Nghiệp Mỹ Phước, Bến Cát, Tỉnh Bình Dương Tổng diện...
Diện tích: Không xác định
Khu vực: Thị xã Bến Cát, Bình Dương Ngày: 13:34 | 28/03/2026 Giá: Thỏa thuận

CHO THUÊ NHÀ XƯỞNG – KCN ĐỒNG AN 1, BD – 6.480m²
CHO THUÊ NHÀ XƯỞNG – KCN ĐỒNG AN 1, BD – 6.480m² Thông tin chi tiết Vị trí: Khu Công Nghiệp Đồng An 1, Tỉnh Bình Dương Tổng diện tích khuôn viên: 13.600m² Diện...
Diện tích: 6480 m2
Khu vực: Thị xã Bến Cát, Bình Dương Ngày: 11:18 | 25/03/2026 Giá: 99,000 Vnđ

Cho thuê nhà xưởng KCN Mỹ Phước, Bến Cát, Bình Dương 20.019m²
Cho thuê nhà xưởng – KCN Mỹ Phước, Bến Cát, Bình Dương – 20.019m² Thông tin chi tiết Vị trí: Khu Công Nghiệp Mỹ Phước, Thị xã Bến Cát, Tỉnh Bình Dương Tổng...
Diện tích: Không xác định
Khu vực: Thị xã Bến Cát, Bình Dương Ngày: 13:17 | 11/03/2026 Giá: Thỏa thuận

Cho thuê nhà xưởng, Mỹ Phước, Bến Cát, Bình Dương 10.000 m2
Cho thuê nhà xưởng, Mỹ Phước, Bến Cát, Bình Dương - 10.000 m² Thông tin chi tiết: Tổng diện tích khuôn viên: 15.000 m² Diện tích nhà xưởng: 10.000 m² Trang thiết...
Diện tích: Không xác định
Khu vực: Thị xã Bến Cát, Bình Dương Ngày: 11:03 | 05/03/2026 Giá: Thỏa thuận

Cho thuê nhà xưởng Cánh Phú Hòa, Bến Cát, Bình Dương 2.772m²
Cho thuê nhà xưởng – Cánh Phú Hòa, Bến Cát, Bình Dương – 2.772m² Thông tin chi tiết Vị trí: Phường Chánh Phú Hòa, Thị xã Bến Cát, Tỉnh Bình Dương Tổng diện...
Diện tích: Không xác định
Khu vực: Thị xã Bến Cát, Bình Dương Ngày: 13:18 | 03/03/2026 Giá: Thỏa thuận

Cho thuê nhà xưởng KCN Mỹ Phước, Bến Cát, Bình Dương 11.928m²
Cho thuê nhà xưởng – KCN Mỹ Phước, Bến Cát, Bình Dương – 11.928m² Thông tin chi tiết Vị trí: Khu Công Nghiệp Mỹ Phước, Thị xã Bến Cát, Tỉnh Bình Dương Tổng...
Diện tích: Không xác định
Khu vực: Thị xã Bến Cát, Bình Dương Ngày: 11:37 | 03/03/2026 Giá: Thỏa thuận

CHO THUÊ NHÀ XƯỞNG – KCN RẠCH BẮP, BẾN CÁT, BÌNH DƯƠNG – 17.420m²
CHO THUÊ NHÀ XƯỞNG – KCN RẠCH BẮP, BẾN CÁT, BÌNH DƯƠNG – 17.420m² Thông tin chi tiết Vị trí: Khu Công Nghiệp Rạch Bắp, Thị xã Bến Cát, Tỉnh Bình Dương Tổng...
Diện tích: Không xác định
Khu vực: Thị xã Bến Cát, Bình Dương Ngày: 13:16 | 24/01/2026 Giá: Thỏa thuận

CHO THUÊ NHÀ XƯỞNG SẢN XUẤT – KHO CHỨA HÀNG TẠI BẾN CÁT, BÌNH DƯƠNG
XT Bến Cát CHO THUÊ NHÀ XƯỞNG SẢN XUẤT – KHO CHỨA HÀNG TẠI BẾN CÁT, BÌNH DƯƠNG Vị trí đắc địa – Giao thông kết nối thuận lợi Tọa lạc ngay mặt tiền...
Diện tích: 4400 m2
Khu vực: Thị xã Bến Cát, Bình Dương Ngày: 20:06 | 17/01/2026 Giá: 120,000,000 Vnđ


