Ngày đăng: 06/10/2025 - Ngày hết hạn: 05/11/2025
Diện tích: Giá: Thỏa thuận Quận/Huyện: Huyện Bến Cầu Tỉnh/Thành phố: Tây Ninh
Thông tin chi tiết
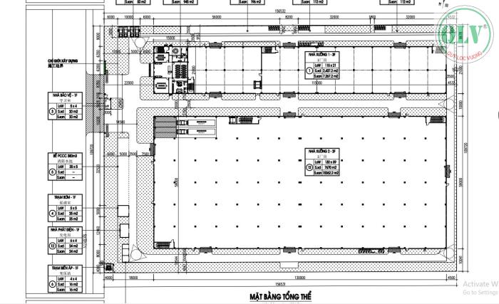
Vị trí: Khu công nghiệp Mộc Bài, Huyện Bến Cầu, Tỉnh Tây Ninh
Tổng diện tích khuôn viên: 17.174m²
Diện tích xây dựng: 22.989m², bao gồm:
Xưởng 1: 7.627m² (3 tầng, diện tích sàn: 2.437m²/tầng)
Xưởng 2: 15.362m² (2 tầng, diện tích sàn: 7.692m²/tầng)
Văn phòng: 945m²
Giá cho thuê: 3,0 USD/m²/tháng
Tiện ích & hạ tầng:
Kết cấu nhà xưởng kiên cố, thiết kế nhiều tầng, tối ưu diện tích sử dụng
Hệ thống điện, nước, PCCC đầy đủ
Đường nội bộ rộng, xe container ra vào thuận tiện
Nằm trong KCN Mộc Bài, vị trí chiến lược gần cửa khẩu, thuận lợi cho xuất nhập khẩu
Phù hợp nhiều ngành nghề sản xuất, kho bãi, logistics
Để biết thêm thông tin chi tiết vui lòng liên hệ:
CTY TNHH MTV QUÝ LỘC VƯỢNG
Hotline: 0931 769 444
Website: https://nhaxuongchinhchu.vn
Hình ảnh




Video
Bản đồ

CHO THUÊ NHÀ XƯỞNG – KCN MỘC BÀI, BẾN CẦU, TN – 22.989m²
CHO THUÊ NHÀ XƯỞNG – KCN MỘC BÀI, BẾN CẦU, TN – 22.989m² Thông tin chi tiết Vị trí: Khu công nghiệp Mộc Bài, Huyện Bến Cầu, Tỉnh Tây Ninh Tổng diện tích...
Diện tích: Không xác định
Khu vực: Huyện Bến Cầu, Tây Ninh Ngày: 11:41 | 14/01/2026 Giá: Thỏa thuận


