Ngày đăng: 10/01/2026 - Ngày hết hạn: 31/05/2026
Diện tích: Giá: Thỏa thuận Quận/Huyện: Thành phố Đồng Xoài Tỉnh/Thành phố: Bình Phước
Thông tin chi tiết
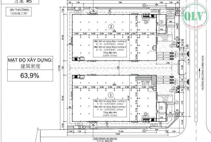
Vị trí: Cụm Công Nghiệp Tiến Hưng, TP. Đồng Xoài, Bình Phước
Tổng diện tích khuôn viên: 14.789m²
Tổng diện tích xây dựng: 18.936m²
Trong đó
Nhà xưởng 1: DTXD 9.236m² (1 trệt 1 lầu: 4.268m² + 4.268m²), văn phòng 700m² (3.5 tầng), có 2 thang máy, bình điện 400 KVA, bãi xe công và các công trình phụ trợ khác
Nhà xưởng 2: DTXD 9.236m² (1 trệt 1 lầu: 4.268m² + 4.268m²), văn phòng 700m² (3.5 tầng), có 2 thang máy, bình điện 400 KVA, bãi xe công và các công trình phụ trợ khác
Tiện ích & đặc điểm
Kết cấu nhà xưởng kiên cố, thiết kế 2 tầng, phù hợp đa ngành nghề
Đường nội bộ rộng rãi, xe container ra vào thuận tiện
Hệ thống hạ tầng điện – nước – PCCC đạt chuẩn
Nằm trong CCN Tiến Hưng, an ninh tốt, thuận lợi sản xuất
Liên hệ
CÔNG TY TNHH MTV QUÝ LỘC VƯỢNG
Hotline: 0931 769 444
Website: https://nhaxuongchinhchu.vn
Hình ảnh





Video
Bản đồ

CHO THUÊ NHÀ XƯỞNG – KCN ĐỒNG XOÀI, BP – 27.281m²
CHO THUÊ NHÀ XƯỞNG – KCN ĐỒNG XOÀI, BP – 27.281m² Thông tin chi tiết Vị trí: Khu Công Nghiệp Đồng Xoài, Tỉnh Bình Phước Tổng diện tích khuôn viên: 42.945m² Tổng...
Diện tích: Không xác định
Khu vực: Thành phố Đồng Xoài, Bình Phước Ngày: 14:54 | 30/12/2025 Giá: Thỏa thuận

CHO THUÊ NHÀ XƯỞNG – KCN ĐỒNG XOÀI, BP – 4.817m²
CHO THUÊ NHÀ XƯỞNG – KCN ĐỒNG XOÀI, BP – 4.817m² Thông tin chi tiết Vị trí: Khu Công Nghiệp Đồng Xoài, Tỉnh Bình Phước Tổng diện tích khuôn viên: 7.764m² Tổng...
Diện tích: Không xác định
Khu vực: Thành phố Đồng Xoài, Bình Phước Ngày: 14:39 | 30/12/2025 Giá: Thỏa thuận

CHO THUÊ NHÀ XƯỞNG – KCN ĐỒNG XOÀI, BP – 8.279m²
CHO THUÊ NHÀ XƯỞNG – KCN ĐỒNG XOÀI, BP – 8.279m² Thông tin chi tiết Vị trí: Khu Công Nghiệp Đồng Xoài, Tỉnh Bình Phước Tổng diện tích khuôn viên: 11.752m² Diện...
Diện tích: Không xác định
Khu vực: Thành phố Đồng Xoài, Bình Phước Ngày: 16:37 | 24/12/2025 Giá: Thỏa thuận

CHO THUÊ NHÀ XƯỞNG – KCN ĐỒNG XOÀI, BÌNH PHƯỚC – 27.281m²
CHO THUÊ NHÀ XƯỞNG – KCN ĐỒNG XOÀI, BÌNH PHƯỚC – 27.281m² Thông tin chi tiết Vị trí: Khu Công Nghiệp Đồng Xoài, Tỉnh Bình Phước Tổng diện tích khuôn viên:...
Diện tích: Không xác định
Khu vực: Thành phố Đồng Xoài, Bình Phước Ngày: 11:46 | 07/11/2025 Giá: Thỏa thuận

CHO THUÊ NHÀ XƯỞNG – KCN ĐỒNG XOÀI, BÌNH PHƯỚC – 4.817m²
CHO THUÊ NHÀ XƯỞNG – KCN ĐỒNG XOÀI, BÌNH PHƯỚC – 4.817m² Thông tin chi tiết Vị trí: Khu Công Nghiệp Đồng Xoài, Tỉnh Bình Phước Tổng diện tích khuôn viên:...
Diện tích: Không xác định
Khu vực: Thành phố Đồng Xoài, Bình Phước Ngày: 11:29 | 07/11/2025 Giá: Thỏa thuận

CHO THUÊ NHÀ XƯỞNG – KCN BẮC ĐỒNG PHÚ, BÌNH PHƯỚC – 26.160m²
CHO THUÊ NHÀ XƯỞNG – KCN BẮC ĐỒNG PHÚ, BÌNH PHƯỚC – 26.160m² Thông tin chi tiết Vị trí: Khu Công Nghiệp Bắc Đồng Phú, Tỉnh Bình Phước Tổng diện tích khuôn...
Diện tích: Không xác định
Khu vực: Thành phố Đồng Xoài, Bình Phước Ngày: 09:45 | 11/10/2025 Giá: Thỏa thuận

???? Cho thuê nhà xưởng diện tích 10.000m2 tiêu chuẩn tại Đồng Xoài 3, Bình Phước.
???? Vị trí: Khu công nghiệp Đồng Xoài 3, TP. Đồng Xoài, Tỉnh Bình Phước ???? Tổng diện tích đất: 10.000 m² ????️ Diện tích xây dựng: 6.682 m² ???? Giá cho thuê: • Xưởng...
Diện tích: 10000 m2
Khu vực: Thành phố Đồng Xoài, Bình Phước Ngày: 08:46 | 09/06/2025 Giá: 87,000 Vnđ

Cho thuê nhà xưởng mới 20.400 m2 CCN Tiến Hưng, Bình Phước
Cho thuê nhà xưởng mới 20.400 m2 CCN Tiến Hưng, Bình Phước ???? Tổng diện tích đất: 25.000 m² ???? Tổng diện tích xây dựng nhà xưởng: 20.400 m², gồm: • Xưởng...
Diện tích: Không xác định
Khu vực: Thành phố Đồng Xoài, Bình Phước Ngày: 11:08 | 04/06/2025 Giá: Thỏa thuận


